产品目录
桃色在线视频
液体流量计
桃色成人在线视频
油流量计
桃色视频入口
椭圆齿轮流量计
电磁流量计
涡街流量计
蒸汽流量计
孔板流量计
旋进旋涡流量计
热式气体质量流量计
转子流量计
浮子流量计
靶式流量计
气体流量计
超声波流量计
磁翻板液位计
浮子液位计
浮球液位计
玻璃管液位计
雷达液位计
超声波液位计
投入式液位计
压力变送器
差压变送器
液位变送器
温度变送器
热电偶
热电阻
双金属温度计
推荐产品
联系桃色APP直播软件
- 金湖桃色APP直播软件仪表有限公司
- 联系电话:15195518515
- 在线客服:1464856260
- 电话:0517-86801009
- 传真号码:0517-86801007
- 邮箱:1464856260@qq.com
- 网址:http://www.hdl-enamel.com
- 地址:江苏省金湖县理士大道61号
金属管转子流量计的安装要求
发布时间:2024-01-05 09:06:37 点击次数:1295次
金属管转子流量计是工业自动化过程控制中常用的一种面积流量测量仪表。它具有体积小,检测范围大,使用方便等特点。它可用来测量液体、气体以及蒸汽的流量,特别适宜低流速小流量的介质流量测量。
金属管转子流量计主要有三大部分组成:1.测量管体;2.锥形浮子;3.指示器。浮子的位移量与流量大小成正比,通过磁耦合系统,以不接触方式,将浮子位移量传给指示器指出流量大小。也可配合不同的转换器,将流量值转换成标准的电远传信号如4-20mA。实现距离远传显示、记录、积算和控制等功能。
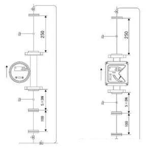
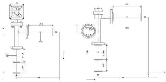
1、直管段要求:前100mm+5D(D为管道内径),后250mm
2、流量计安装时要保证测量管的垂直度优于5%,且应加装旁路
3、介质中含有铁磁性物质,应在流量计前安装磁过滤器
4、控制阀,应安装在流量计的下游
5、安装流量计前,应进行管道内焊渣吹扫
6、安装时,取出流量计中的止动元件
7、使用时,要缓慢开启控制阀门,避免冲击损坏流量计
8、安装方法:
1)下进上出安装图

2)下进上横出安装图

3)下横进上横出安装图

4)左进右出安装图

上一篇:金属管转子流量计的使用特点下一篇:靶式流量计安装方式有哪些

