产品目录
桃色在线视频
液体流量计
桃色成人在线视频
油流量计
桃色视频入口
椭圆齿轮流量计
电磁流量计
涡街流量计
蒸汽流量计
孔板流量计
旋进旋涡流量计
热式气体质量流量计
转子流量计
浮子流量计
靶式流量计
气体流量计
超声波流量计
磁翻板液位计
浮子液位计
浮球液位计
玻璃管液位计
雷达液位计
超声波液位计
投入式液位计
压力变送器
差压变送器
液位变送器
温度变送器
热电偶
热电阻
双金属温度计
推荐产品
联系桃色APP直播软件
- 金湖桃色APP直播软件仪表有限公司
- 联系电话:15195518515
- 在线客服:1464856260
- 电话:0517-86801009
- 传真号码:0517-86801007
- 邮箱:1464856260@qq.com
- 网址:http://www.hdl-enamel.com
- 地址:江苏省金湖县理士大道61号
浮子流量计的结构工作原理
在流量测量中,浮子流量计是量大面广的产品之一。它具有结构简单、直观、压损小、测量范围大、运行可靠、可测中小流量及低雷诺数流量、维护方便、寿命长,对仪表前后直管段长度要求不高等优点。多年来,浮子流量计的各种优良性能和可靠性,以及较好的性能价格比,广泛受到了石化、钢铁、电力、冶金、轻工、食品、制药、水处理等行业的青睐。
1、原理
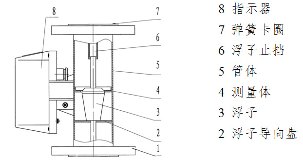
浮子流量计又称转子流量计,是变面积式流量计的一种。浮子流量计实现流量测量的理论基础是“定压将,变面积“原理。在流动的流体中放置一个轴线与流向平行的浮子,见图1。

浮子流量计本体可以用两端法兰、螺纹或软管与测量管道连接。当流体自下而上流入锥管时,被浮子截流,这样在浮子上、下游之间产生压力差,浮子在压力差的作用下上升,这时作用在浮子上的力有三个:流体对浮子的动压力、浮子在流体中的浮力和浮子自身的重力。只有当流体对浮子的动压力与浮子在流体中所受的浮力之和等于浮子的重力时,浮子就平稳地浮在某一位置上。
大量实验证明,在一定雷诺数的范围内,对于同一口径浮子流量计,流体流速的大小与浮子的形状有关。对于给定的浮子流量计,浮子大小和形状已经确定,因此它在流体中的浮力和自身重力都是已知是常量,唯有流体对浮子的动压力是随来流流速的大小而变化的。因此当来流流速变大或变小时,浮子将作向上或向下的移动,相应位置的流动截面积也发生变化,流动截面积与浮子的上升高度成比例,即浮子的某一高度代表流量的大小。浮子上下移动时,以磁耦合的形式将位置传递到外部指示器,直到流速变成平衡时对应的速度,浮子就在新的位置上稳定。对于一台给定的浮子流量计,浮子在测量管中的位置与流体流经测量管的流量的大小成一一对应关系。
为了使浮子在形管的中心线上下移动时不碰到管壁,通常采用两种方法:一种是在浮子中心装有一根导向芯棒,以保持浮子在锥形管的中心线作上下运动,另一种是在浮子圆盘边缘开有一道道斜槽,当流体自下而上流过浮子时,一面绕过浮子,同时又穿过斜槽产生一反推力,使浮子绕中心线不停地旋转,就可保持浮子在工作时不致碰到管壁。浮子流量计的浮子材料可用不锈钢、钛、316L等制成。
2 构成
浮子流量计是由浮子、锥管、检测器等部件组成。浮子组件装有磁钢,其作用把是浮子的位移信号以磁信号的形式传输给检测器。检测器把这一检测到的信号再以电信号的形式远距离传输,并现场指示瞬时流量值。
浮子流量计具有小流量值、范围度大、不用现场调试的特点。其结构简单、运动部件磨损小、使用寿命长、压力损失小、安装方便、维修量小、使用周期长、可远距离传输流量信号,与计算机连用可实现集中管理。
但也存在不足,如对于高黏度、大流量、以及两相以上流体不能测量。

3、应用
由浮子流量计和流量显示仪两部分组成的流量仪表,其显示仪为通用流量显示仪表。与其它形式流量计比较,具有以下优点:流量计内部可动部件较少、构造简单、使用寿命长;范围度10:1;从理论上说不需单独标定即可用于流量测量;仪表输出电信号,易于实现数字化测量及计算机联用;测量准确度可达±1%。现在国内外都在积*研究浮子流量计的开发和应用。浮子流量计的在应用时的流量计算如图2。

P1、P2——端面Ⅰ、Ⅱ上的平均压力
V1、V2——端面Ⅰ、Ⅱ上的平均流速
Z1、Z2——端面Ⅰ、Ⅱ上距起始水平面高度
F1——端面Ⅰ的面积
fk——端面Ⅱ环隙面积
F——浮子*大端面面积
ρf——浮子材料密度
ρ——流体介质密度
V——浮子体积
h——浮子位移
β——锥管半角
R——浮子位移h处锥管半径
g——当地重力加速度
r——浮子*大半径
浮子流量计的理论方程式是根据伯努利方程,流体连续性方程以及力平衡的原理推出。
根据伯努力方程有下式:
(1)
若设Z1≈Z2 (流量系数中予以修正)
则(1)式为
(2)
根据流体力学方程有下式:
(3)
又根据浮子的力平衡原理有下式:
(4)
有图2可知,F1≈F,fk<<F1联立解(2)、(3)、(4)式可得
(5)
因此,体积流量为:
(6)
质量流量为:
(7)
其中:α—流量系数,它是取决于浮子形状、雷诺数以及上述各种标定条件的修正系数,由试验确定。
浮子流量计在应用中要保证其测量准确度,就必须正确的安装使用:
浮子流量计安装地点选在无强电、磁场干扰的环境;要求竖直安装、倾斜度不大于2°,无机械振动,流体保持充满管道;用于测量气体时,为使流量计稳定工作,被测气体压力一般应大于0.1MPa;若被测气体较脏或含有导磁颗粒时,应在流量计的上游安装过滤器或磁过滤器。浮子流量计的口径与管道必须对应,法兰之间的密封垫圈不得突入管内。
4、结语
浮子流量计作为过程控制仪表,可以适应高温、高压、强腐蚀、剧毒等多种苛刻环境,较少的可动部件、便于维护,解决了生产中的许多难题。正确合理的设计,浮子流量计以其卓越的性能被越来越多的用户所青睐。展望未来,浮子流量计趋向电子化和数字化,将为其开拓新的领域;已逐步实现累计流量显示、HART通讯等多项功能。

