产品目录
桃色在线视频
液体流量计
桃色成人在线视频
油流量计
桃色视频入口
椭圆齿轮流量计
电磁流量计
涡街流量计
蒸汽流量计
孔板流量计
旋进旋涡流量计
热式气体质量流量计
转子流量计
浮子流量计
靶式流量计
气体流量计
超声波流量计
磁翻板液位计
浮子液位计
浮球液位计
玻璃管液位计
雷达液位计
超声波液位计
投入式液位计
压力变送器
差压变送器
液位变送器
温度变送器
热电偶
热电阻
双金属温度计
推荐产品
联系桃色APP直播软件
- 金湖桃色APP直播软件仪表有限公司
- 联系电话:15195518515
- 在线客服:1464856260
- 电话:0517-86801009
- 传真号码:0517-86801007
- 邮箱:1464856260@qq.com
- 网址:http://www.hdl-enamel.com
- 地址:江苏省金湖县理士大道61号
液体转子流量计
- 品*:JKM/桃色APP直播软件仪表
- 型号:JKM-LZ
- 测量范围:0.0025~60m³/h
- 精度等级:±1.5%
- 公称通径:DN15~DN100
- 适用介质:液体、气体
- 工作压力:1.6~4.0MPa
- 工作温度:-80℃~200℃
- 供电方式:24VDC
- 订货号:ROZLLVBFD892
液体转子流量计产品概况
LZ 系列金属管浮子流量计结构简单、工作可靠、准确度高、适用范围广。与玻璃转子流量计相比较能耐较高的压力。LZ 系列流量计具有就地指示、电远传、限位开关报警、耐腐蚀、夹套型、阻尼型和防爆等品种。广泛应用于国防、化工、石油、冶金、电力、环保、医药和轻工等部门的液体、气体流量的测量与自动控制。
流量计检测部分零件均有 1Cr18Ni9Ti 不锈钢材料制成 ,特殊场合也可由 Cr18Ni12Mo2Ti 或 F46 等耐腐蚀材料组成。流量计除特殊规格外,高度均为 250 mm。
连接法兰采用 GB/T9119.8~10 标准,也可根据用户特殊要求定制。

液体转子流量计原理结构
由下而上的流体通过直立的测量管时,浮子在压差的作用下上升、浮子上升的高度即代表流量的大小。并通过浮子中的磁钢与指示器中的磁钢耦合联结传递给指示器,带动指示器中的指针转动。

液体转子流量计技术要求
1. 测量范围:水(2.5~60000)L/h;空气(0.07~2000)m3/h (在 0.101025 MPa、20℃)。
2. 准确度等级: 1.5、2.5 级。
3. 量 程 比: 10:1。
4. 工作压力: DN15~50,4 MPa; DN80~100,1.6MPa。
5. 介质温度: -80℃~200℃(内衬 F46 流量计 0℃~80℃)。
6. 液体介质粘度:DN15<5mPa·s;DN25~100<5mPa·s。
7. 连接方式:法兰连接、螺纹连接等;法兰采用 GB/T9119.8~10 标准。
8. 总 长 度: DN15~100 250mm。
9. 测量管材质:普通型 1Cr18Ni9Ti,耐腐型 Cr18Ni12Mo2Ti,316L、316 衬 F46 等。
如用户有特殊要求可特殊订货。

液体转子流量计电性能
1. 输出信号:二线制(4~20)mA、三线制(0~10)mA。
2. 线 性 度:1%;
3. 电 源:DC 24(1±)V。
4. 功率消耗:25 mW。
5. 环境温度:-25 ℃~55 ℃。
6. 温度影响:0.5%/10 ℃。
7. 负载电阻:DC (0~10)mA (0~1)kΩ; (4~20)mA (0~600)Ω。
8. 接线电缆:RVVP 3×28/0.15。
9. 防爆等级:ExibⅡ2CT5。
10. 配安全栅型号:LB906 型。
11. 电远传变送器:HK-H810 型或 ESK-I(二线制)。;
12. 接 线 图:

液体转子流量计限位开关报警装置
对 LZ 型指示器可以安装限位开关报警装置
1. 技术参数:
a) 供电电源:AC 220(1±10%)V;
b) 功 耗:≤3 W;
c) 工作温度:-25 ℃~60 ℃。
2. 接 线 图:

3. 限位值的设定:限位开关的位置可以通过改变感应头的位置任意设定。
液体转子流量计型号规格
1. 型号

2. 选型

2. 流量范围
流量范围见表 2

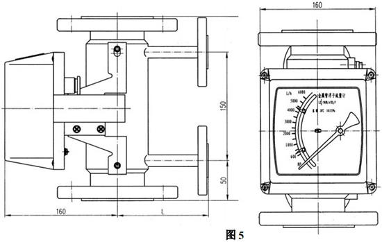
液体转子流量计安装尺寸
1. LZ

2. GB/T911.8~10



液体转子流量计使用与维修
1. 安装流量计之前一定要将管道内的焊渣、杂物清理干净。
2. 流量计必须垂直于地面安装其倾斜度不得超过 2°。否则会影响测量准确度。
3. 为了确保流量计的测量准确性,应在流量计的进口端增加不少于 10DN 的直管段,出口端不少于 5DN 的直管段,测量时调节控制阀必须安装在流量计的下游。
4. 若被測介质为大的脉动流或两相流,应在流量计的上游安装缓冲器来消除或减弱脉动,保证介质的流动是单相稳定的,同时,建议流量计*好使用阻尼型的。
5. 若被測介质较脏或含有导磁颗粒时,应在流量计的上游安装过滤器或磁过滤器。
6. 流量计的安装应能适当支撑管道的振动或减少流量计的轴向负荷,否则应增加固定流量计的支撑。
7. 为了便于流量计的保养维修,磁过滤器的清洗以及用户管路的定期维护保养,建议使用如图所示的旁路管道。
8. 当流量计用于气体测量时,应保证管道内的工作压力不少于 5 倍流量计的压力损失,使流量计能够稳定正常动作。
9. 对电远传及带报警限位开关的流量计在使用前,打开仪表盖,按接线图示正确接线。对于报警型的旋松限位开关处的螺丝,用户根据需要设定限位报警位置,并旋紧螺丝,复原后使用。
10. 按仪表指示器中的警示*,取出运输中防止浮子振动的阻动件,复原后再使用仪表。
11. 若开启流量计时,由于管道内没有压力或系统还未达到仪表正常使用的工作压力,必须缓慢开启控制阀,直到系统正常,仪表方可使用,否则容易造成指针跳动或浮子的突然撞击而损坏的现象。
12. 用户使用时,若被測流体的密度与水不同时,或被測气体的参数和工作状态与制造厂家规定不同时应对流量计示值读数进行换算,换算方法见附录。

液体转子流量计仪表常见故障的维修
常见故障及排除方法见表 5:

以上常见故障,如用户不能自行排除,请送回厂家维修或向厂家咨询。
液体转子流量计防爆产品使用注意事项
LZD 系列金属管浮子流量计,经**级仪器仪表防爆安全监督站(NEPSI)检验,符合GB3836.1 和 GB3836.4 标准规定的要求,产品防爆标志为 ibllCT5。用户在使用产品时应注意下列事项。
1. 金属管浮子流量计外壳没有接地端子,用户在使用时应可靠接地。
2. 金属管浮子流量计的*大使用环境温度为-25 ℃~55 ℃。
3. LZD 系列金属管浮子流量计必须与 LB906 齐纳安全栅配套使用构成本安防爆系统。系统接线如图 6。

4. 本安全系统的布线应尽量避免外界电磁干扰的影响,并将电缆分布参数控制在 0.08μF 和 2 mH 以内。
5. 安全栅必须安装在安全场所。安全栅的安装、使用和维护应遵守使用说明书。
6. 与安全栅相连的控制室仪表的*高工作电压或其内部可能产生的*高电压不得高于250Vrms。
7. 用户在安装、使用和维护 LZD 系列金属管浮子流量计时,务必认真阅读产品说明书,并同时遵守《中华人民共和国爆炸危险场所电气安全规程》。
液体转子流量计设计选用及订货须知
1. 根据测量流体是气体或液体。正确选用气体或液体金属管浮子流量计。
2. 被测流体无腐蚀性选用普通型,有腐蚀性选用防腐型。
3. 订货时请注明被测介质名称、流量、管道通径及工作压力、温度、密度、粘度等情况。我公司可根据用户提出的密度等进行刻度修正,制作特殊的流量标尺。
4. 根据被测流体的测量范围、应用场合等选用合适型号的规格品种。如有特殊要求的流量计,请来公司或来函与营销科联系。
附录
1. 流量计用于测量液体流量时,制造厂是用常温下清洁的水作为校验流体标尺分度,若被测流体的密度与水不同时,应对流量示值读数进行换算。换算公式如下:

式中:
Q1-工作状态下流量;
Q0-流量计示值流量或输出信号所对应的流量;
ρf-浮子的平均密度;
ρ1-被测液体在工作状态下的密度;
ρ0-20 ℃ 时水的密度(998.2kg/m3)。
2. 流量计用于气体流量时,制造厂以标准状态(20℃、101.325kPa)下的干空气作为气体标尺分度的。若被测气体的工作状态与制造厂规定不同时,应对流量计示值读数进行换算,换算公式如下:

式中: Q1-工作状态下的气体流量换算到标准状态下的流量;
Q0-流量计示值流量;
ρ1-工作状态下被测干气体的密度
ρ0-标准状态下的干空气的密度,(1.205kg/m3);
P1-工作状态下被测干气体的压力(即表压与大气压之和)kPa;
P0-标准状态时的压力, =101.325 kPa;
T1-工作状态下被测干气体的热力学温度,K;
T0-标准状态时的热力学温度; =293.15 K。
3. 由于用户的工作状态各不相同,所以请注明被测介质名称、流量及通径,另请注明介质压力、温度、密度及粘度,以便桃色APP直播软件帮助用户正确选型。还可以根据用户要求,制作成工作状态或工作状态下的气体换算成标准状态下的流量标尺。
4. 一般被测流量可选用普通型(1Cr18Ni9Ti);带有腐蚀性流体时可耐腐型(衬氟塑料)。如有不详之处,桃色APP直播软件可提供技术咨询。

